Two Southwest Michigan parks awarded grants for big upgrades
The Lexington Green Park Improvement Project in Portage and the Dr. Lawless International Dark Sky Park in Cass are two projects in Southwest Michigan selected to receive federal Land and Water Conservation Fund grants.
The Lexington Green Park Improvement Project in Portage and the Dr. Lawless International Dark Sky Park in Cass are two projects in Southwest Michigan selected to receive federal Land and Water Conservation Fund grants.
What’s happening?
In Portage, improvements to Lexington Green Park are planned to begin in the fall of 2023.
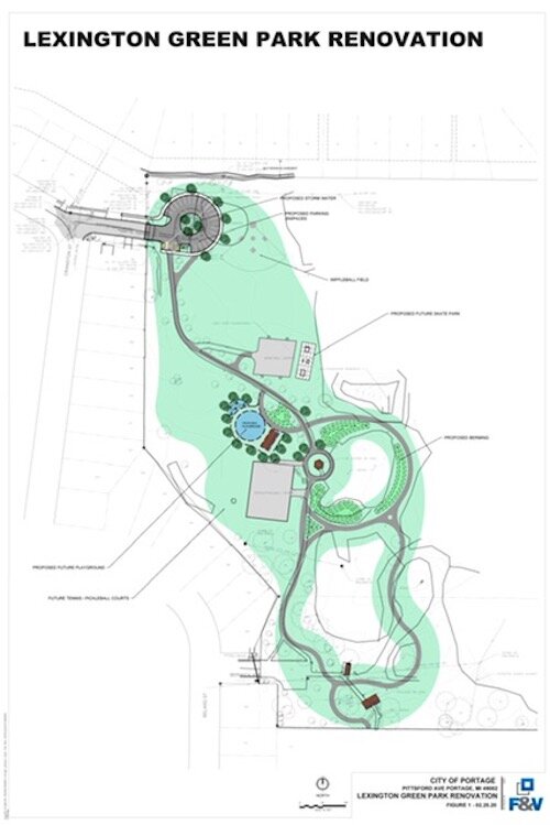
Lexington Green Park is located in the northeast section of the city of Portage and is one of the oldest parks in the system. Current amenities include baseball and softball fields, basketball courts, a bicycle skills course, picnic shelters, tennis and pickleball courts, and a walking trail.
The $1 million improvement project includes widening of the non-motorized trail running through the park from 6 feet to 10 feet to accommodate pedestrians and cyclists.
A new walking loop will be added, and a new pavilion with restrooms constructed for gatherings is to be located in the center of the park next to the play area.

Cass County’s Dr. Lawless International Dark Sky Park’s $857,200 project calls for a new splash pad as well as renovation of the Schug pavilion with accessible restrooms.
The park’s entry gatehouse will be renovated and the existing entrance drive and parking lot paved, with three barrier-free and one universally accessible parking spaces added. Accessible pathways will be constructed to connect facilities.
Who’s paying?
“The Land and Water Conservation Fund is a shining example of what’s possible when federal, state, and local government partners come together to deliver real benefits for Michigan residents and visitors,” says Gov. Gretchen Whitmer in the announcement of grant awards.
The City of Portage received a $500,000 grant from the federal program; the city is matching it with $500,000, as required by the Land and Water Conservation Fund guidelines. Total project cost is $1 million.
In Cass County, a $428,600 grant is being matched by the county with $428,600, as required. Total project cost is $857,200.
What communities are saying
“As you can imagine we are so excited and thankful for the funding,” says Scott Wyman, Cass County Director of Parks. “It is a wonderful example of federal, state, and local leadership working together for the greater good.”
“Access to the outdoors is vital to the quality of life for everyone who lives here or visits here,” says MIchigan Department of Natural Resources Director Dan Eichinger. “The Land and Water Conservation Fund, in addition to other important grant programs, broadens that access in meaningful ways, whether through expanded hiking trails, increased public water access, or better amenities like restroom renovations and welcoming pavilions at local parks. These grants are integral to connecting more people to our state’s uniquely Michigan outdoor experiences.”
Where else?
In all, 13 projects were awarded awarded grants, in Alpena, Bay, Cass, Cheboygan, Ionia, Ingham, Kalamazoo, Macomb, Marquette, Montcalm and Ottawa counties. That funding will support boardwalk, trail and park renovations and improvements, park pavilion and restroom development, lock and dam public water access and more.
Location by county, project title and grant amount for each project:
(Ingham County) Lake Lansing Park North Boardwalk & Trail: $500,000
(Bay County) Pondside Park Improvements: $375,000
(Ionia County) Hale Park Improvements: $382,000
(Montcalm County) Fred Meijer Trail Hub Project, $465,400
(Alpena County) Duck Park Development of Pavilion and Restrooms: $150,000
(Cass County) DR. LAWLESS INTERNATIONAL DARK SKY PARK Renovation Project: $428,600
(Marquette County) Michigamme Township Park Dock Access & Tennis Renovation: $183,200
(Macomb County) Lake St. Clair Metropark W. Boardwalk Renovation: $500,000
(Marquette County) Tourist Park Day-Use Access Road and Parking Area: $250,000
(Kalamazoo County) LEXINGTON GREEN PARK Improvement Project: $500,000
(Macomb County) Stony Creek Reflection Trail Accessibility Renovation: $500,000
(Cheboygan County) Cheboygan Lock & Dam Public Water Access Site Renovation: $3,000,000
(Ottawa County) Ottawa Sands Day-use Restroom: $242,900





